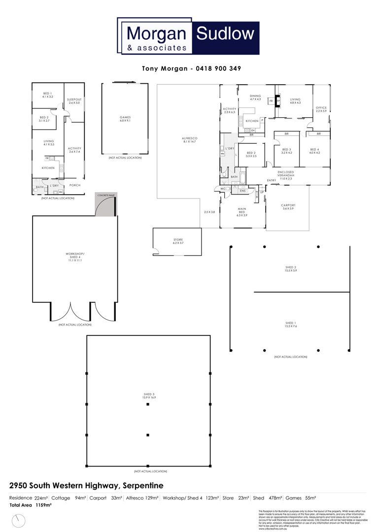
2950 South Western Highway Serpentine WA 6125
4
2
2
Sold
Property ID: 55906
Acres: 114.53
Hectares: 46.35
Location
Address : South Western Highway
Suburb : SERPENTINE
State : Western Australia
Postal Code : 6125
Farm Features
Category
: Mixed
Property Features
'Mount View' - A Rare Lifestyle Opportunity - 46ha (114 acres) with Rich Family Heritage in Serpentine
"Mount View"
Address: 2950 South Western Highway, Serpentine WA
Land Size: 46.35 hectares (114.53 acres)
Price: Expressions of Interest
Offered for ...
Read more