89 Schrapels Road Mount Pleasant SA 5235
3
1
11
Sold 10/12/2025
Property ID: 55452
Acres: 34.59
Hectares: 14.00
S'avance Real Estate
5 Iris Court STIRLING 5152
Phone: 0419685200
Location
Address : Schrapels Road
Suburb : MOUNT PLEASANT
State : South Australia
Postal Code : 5235
Horse & shed enthusiasts paradise - 14 HA
Discover the perfect blend of rural charm and equestrian amenities at this delightful property. Set against a backdrop of well-maintained paddocks it's a shed a ...
Discover the perfect blend of rural charm and equestrian amenities at this delightful property. Set against a backdrop of well-maintained paddocks it's a shed and horse lovers paradise! An impressive 523 sqm of shedding awaits plus a dressage arena, extensive horse stables and guaranteed water.
An utterly picturesque 35 acre farm is the backdrop for this equine mecca. Fully fenced, there is an all-weather dressage arena and surfaced 20-metre round yard already in place. Before you even get to home, you will pass some of the many multi-bay sheds, stables and day yards that can accommodate the largest contingent of livestock, horses and farm machinery.
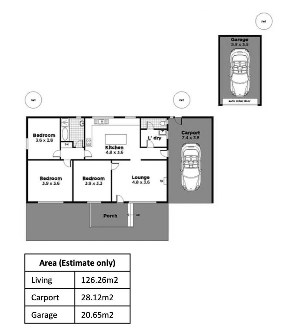
A restful retreat, the timber cottage offers a relaxed country vibe. Polished timber floors feature as does the modernized kitchen boasting solid timber tops, a practical island breakfast bench and modern appliances. There are 3 spacious bedrooms plus neat bathroom/laundry facilities. Multiple split system air conditioners ensure consistent climate control no matter the weather. Step outside where you will find a carport and wide veranda adding function and shelter to your new rural retreat.
Nearby, one of those huge sheds has been converted into a home office on one end and a lounge room/bedroom plus utilities room at the other. A diverse space that could be your man cave/art studio or a dedicated guest space. The options are only limited by your imagination. There is so much infrastructure and shedding on the farm a separate list is required – please see below.
Proving that your huge slice of the country is ready to thrive, you have ten well fenced paddocks with the majority protected by electrified fencing. With so much flat land at your beckon call, you will arise every day excited by the farm and its potential.
Whether you are an avid rider, shed enthusiast or simply appreciate rural life, 89 Schrapels Road offers you an unparalleled opportunity to own a property that is well set up and ready for both relaxation and adventure. Don't miss out on making this dream your reality!
Shedding & Equestrian Highlights:
- Approximately 500 m² of outbuildings, you'll have more than enough storage and workspace.
- 20m x 40m dressage arena complete with all-weather sand base and timber fencing.
- Steel round yard for working your horses.
- Largest shed complex approx. 30 m x 6m – divided into 4 separate zones. Majority concreted and has power.
- 30m x 12 m shed by house. Divided into 5 zones including carport for x4 vehicles. Concrete floor and power. Includes the lined home office & lined guest space with a pergola.
- 18 m x 6 m shed divided into 3 zones. Concrete floor and power. Horse wash bay and tie area at one end. Outdoor bathroom with toilet/shower/handbasin (hidden in tool shed) on other end.
- Open fronted 6-bay shed with tie-up spots for your horses.
- Four rear paddocks flood light (lighting on main sheds).
- Two substantial horse stable sheds towards the rear of the farm. Each has a rain-water tank.
- Additional stables and yards providing ample accommodations for your horses. The 7 stables near house have lighting inside and spotlights outside. Water lines in place for water.
Farm paddocks, fencing & water:
- All paddocks are well fenced and in good condition, majority set up for horses ensuring a safe and comfortable environment.
- Gently sloping land is beautifully kept, enhancing the property's natural beauty.
- All paddocks are hand weeded for noxious weeds. Very little rock on the land.
- The 2 back paddocks produced 780 bales of hay when last cut in 2024.
- 14 tanks with approximately 200,000 litres of rainwater storage for house or stock.
- Mains water (non-potable supply = stock/garden use only). This supply can be pumped throughout property supplying horse waterers & taps in yards.
- Wash area for horses equipped with taps and a drinking trough.
- Property is sustainable for your own firewood supply, a huge saving!!
*Whilst every endeavor has been made to verify the correct details in this marketing neither the agent, vendor or contracted illustrator take any responsibility for any omission, wrongful inclusion, misdescription, or typographical error in this marketing material. Accordingly, all interested parties should make their own inquiries to verify the information provided.
The floor plan included in this marketing material is for illustration purposes only, all measurements are approximate and are intended as an artistic impression only. Any fixtures shown may not necessarily be included in the sale contract and any queries must be directed to the agent. Any information that is intended to be relied upon should be independently verified.
Read more
Read Less
Property Features
- - 1 Bathrooms
- - 3 Bedrooms
- - 6 Car Spaces
- - 5 Garages