Operation Renovation
Calling all builders, tradespeople, and renovators – here’s a project with serious potential. This council approved 5-bedroom, 2-bathroom home is a genuine reno ...
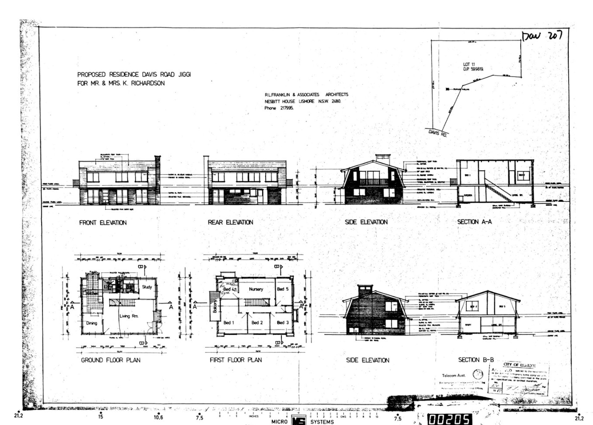
Calling all builders, tradespeople, and renovators – here’s a project with serious potential. This council approved 5-bedroom, 2-bathroom home is a genuine renovator’s delight that needs a complete overhaul. The house is tired and in need of repairs inside and out, but it offers a large footprint, solid structure, and plenty of scope to rebuild or reconfigure to suit your vision and skills to restore it.
Infrastructure on the property includes a 2-bay carport, multiple sheds, and a full-length verandah. The home sits on an elevated position with a pleasant outlook across the valley, offering a setting worth restoring.
The land spans 23.5 acres and, like the home, has been neglected and will require extensive work to bring back to life. Features include a creek, two dams, and a top plateau paddock – all elements that could be turned into valuable assets with time and effort. With water security, space, and solid bones to work with, this is an opportunity to create something special from the ground up.
This property won’t suit the faint-hearted, but for the right buyer with the skills, resources, and energy to take it on, it represents an affordable entry into acreage living with great upside. Roll up your sleeves, bring your tools, and unlock the potential that’s waiting here.
**VENDOR IS SELLING AS IS, AS MARKETED, NOT REMOVING ITEMS FROM PROPERTY**
*Council documents on file, email to be sent all documents on file*
Call Uri today for more information.
Disclaimer: Whilst every effort has been made to ensure the accuracy of these particulars, no warranty is given by the vendor or the agent as to their accuracy. Interested parties should not rely on these particulars as representations of fact but must instead satisfy themselves by inspection or otherwise.
Read more
Read Less