Picturesque lifestyle Property with Scenic Vistas
Genuine Sellers Ready to Move, and are prepared to listen to all Reasonable Offers
Nestled in the Great lakes Hinterland, Highview is a premium rural property ...
Genuine Sellers Ready to Move, and are prepared to listen to all Reasonable Offers
Nestled in the Great lakes Hinterland, Highview is a premium rural property featuring generous acreage, high-end architectural design, outstanding views, and flexible living arrangements. Set on Approx 100 Acres the land is a balance of open grazing country with the remainder being beautiful native timber woodlands.
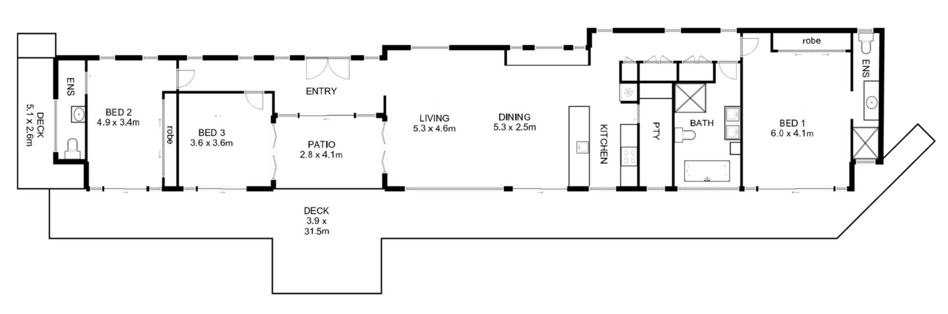
The contemporary 3 bedroom residence is set amongst established gardens, and features light filled North facing interiors; the centre design incorporates the main open plan living area, modern kitchen, and spacious lounge and dining area, allowing access to the deep north facing balcony with views over the property and beyond
The eastern wing includes a spacious bedroom including ensuite and veranda access, the study – TV room has bi-fold doors and can be opened up for access to the balcony allowing a seamless flow for space and entertainment. The western wing incorporates the built in laundry, main bathroom, and a separate main bedroom including ensuite and balcony access.
Complementing Highview is a separate well architecturally designed studio wing incorporating 2 bedrooms, study area, bathroom and mezzanine area for storage; offering an ideal solution for extended family or guest accommodation
Attached to the studio is a lock up garage and an adjacent 3 bay lockup garage with double carport for car and machinery storage. Working improvements include a set of cattle yards, separate paddocks for farm animals, dam and large water tank storage.
An ideal country lifestyle setting and a rare opportunity to acquire an outstanding lifestyle property, offering potential for farm stays eco tourism and within reach of coastal amenities; must be viewed to be appreciated
Approximately 10 Minutes to M1 Motorway, Nabiac Village; 25 minutes drive to Forster beaches and 3hrs from Sydney
The sale is exclusive of livestock, plant & machinery which the vendors will consider selling separately with the successful purchaser
Features:
Architectural design: Thoughtful design to harness views, breezes, and sunlight.
Architecturally designed with solar‑passive principles
Panoramic rural and ocean views
Floor‑to‑ceiling windows
3 Reverse cycle Air-conditioners
Indoor–outdoor open‑plan living areas
Gourmet kitchen with large pantry
Expansive decks; entertainment zones
Versatility: Ideal for large families or hosting guests—with separate studio.
Lifestyle location: Blends privacy with proximity to Coastal Communities and village amenities.
Parking: Up to 8 vehicle spaces, including a three-bay shed and double carport
Established gardens
To arrange a private inspection please contact Cameron Steele on 0412 609 890
Property Code: 752
Read more
Read Less