422 Ventnor Road Ventnor VIC 3922
19
11
12
For Sale
Expressions of Interest - POA
Property ID: 49883
Acres: 15.15
Hectares: 6.13
Eview Real Estate
463 Nepean Highway FRANKSTON 3199
Phone: 87813888
Farm Features
Property Features
- - 11 Bathrooms
- - 19 Bedrooms
- - Ensuite
- - 8 Car Spaces
- - 4 Garages
- - Built In Robes
- - Dish Washer
- - Outside Spa
- - 1 Sheds
- - 1 Sheds
- - Solar Panels
Freehold Accessible Accommodation Farmstay on 15 Acres, Phillip Island!
Premier Accessible Tourism Asset - Ventnor/Cowes, Phillip Island, Victoria!
Main residence, 7 accessible cottages, communal kitchen and farm equipment, animal ...
Premier Accessible Tourism Asset - Ventnor/Cowes, Phillip Island, Victoria!
Main residence, 7 accessible cottages, communal kitchen and farm equipment, animals, paddocks and a large dam included on this residential lifestyle property. An exceptional opportunity to acquire a fully operational, purpose-built accessible accommodation business set on just over 15 acres (6.13ha) of prime farmland in Victoria's iconic Phillip Island.
Ripples n Tonic Farm Stay (formerly Alvina Holiday Cottages) has been nationally recognised for over 20 years for delivering inclusive farm stay experiences to guests of all abilities. Could also be ideal for NDIS accommodation options offering respite and short-term accommodation in accessible farm cottages. Strategically located just minutes from beaches, tourist attractions, and the Penguin Parade, this freehold and business package is ideal for investors, lifestyle buyers, or tourism operators seeking a turnkey opportunity.
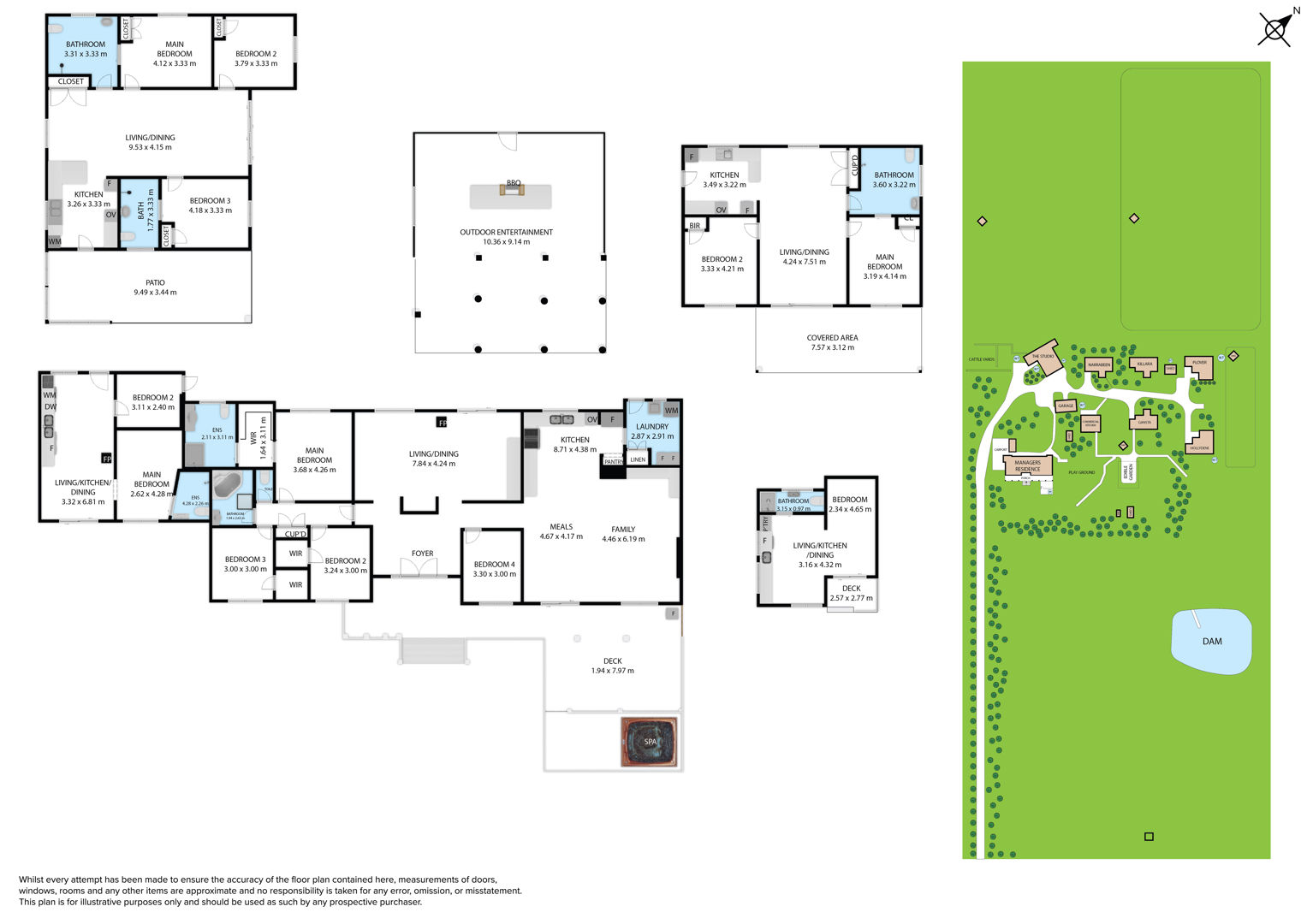
Main Residence
A beautifully appointed double-brick country home offering:
• 4 generous bedrooms with high decorative ceilings & timber flooring
• Large formal & informal living areas with open fireplaces
• Country kitchen with Caesarstone benchtops, timber cabinetry, dual ovens, dishwasher & step-in pantry
• Glass doors opening to a spacious covered deck with outdoor spa
• Ducted heating & cooling, split systems, ducted vacuum system
• 64-panel solar system with battery storage
• $9,000 security system installed
Accommodation
7 accessible, fully furnished and self-contained accessible cottages nestled among native trees and paddocks:
• 2 - 3-bedroom cottages (with ensuites)
• 4 - 2-bedroom cottages
• 1 - 1-bedroom cottage
All designed for universal access and guest comfort, all cottages suitable for wheelchair access.
Farm Equipment
. Diesel Tractor, Slasher, Lawn mower
. Electric 8 seater buggy, Quad bike, Mobility scooters
. Mobile coolroom
Farm Animals
. Cattle, Sheep, Alpaccas, Goats, Chickens, guinea pigs
(Also suitable for horses)
Guest Amenities & Outdoor Facilities
Communal kitchen/dining pavilion with:
. Wood-fired pizza oven
. BBQs & refrigeration
• Outdoor spa
• Children's playground
• Outdoor toilets & laundry
• Farm animal interaction experiences
• Landscaped gardens, gum trees & fruit orchard
Feature Details:
Land Size - 15.18 Acres - (6.13ha)
- 5 paddocks and a dam, cattle crush, farm animals, feed bins and water troughs
Accommodation - 7 Accessible Cottages
Residence - 4-Bedroom Main Home
Guest Facilities - Outdoor Spa, Playground, Communal Kitchen
Power & Security - 64-Panel Solar, Battery, Security System
Location -Ventnor/Cowes, Phillip Island, Victoria
Location Advantages
• 5 mins to Ventnor Beach
• 5 mins to the Penguin Parade - one of Australia's top natural attractions
• 5 mins to Cowes with shops, cafes, and services
• Surrounded by Phillip Island's major tourism attractions including wildlife parks, wineries, surf beaches, and motorsport venues- Grand Prix Racing Track
Business & Investment Highlights
• Operated successfully for over 20 years
• Strong national reputation in inclusive tourism
• Consistent revenue & repeat clientele
• Expansion potential (STCA) for additional accommodation or experience-based offerings
• Positioned in one of Victoria's most resilient tourism markets
With fantastic opportunities for creating extra income from group bookings, weddings, school camp groups with farm interaction experiences, international tourists wanting to experience the Penguin Parade and all the other attractions on Phillip Island. The large paddocks could be used for horse agistment with the Ventnor Pony club nearby. The income options are endless!
For further information on this unique lifestyle and business opportunity, contact - Teresa 0429398730 or Leanne 0437 441 127 for private inspections
Read more
Read Less