Lifestyle Property on 132 Acres or Significant Future Development Opportunity
ZONING: HILLS FACE
Every once in a while, an opportunity comes across your path that makes you sit up and pay attention. This 132 acre parcel of land offers a ...
ZONING: HILLS FACE
Every once in a while, an opportunity comes across your path that makes you sit up and pay attention. This 132 acre parcel of land offers a rare chance for a dream lifestyle with a vineyard, or potential for major future development (STCC) located only 40 minutes from Adelaide's CBD.
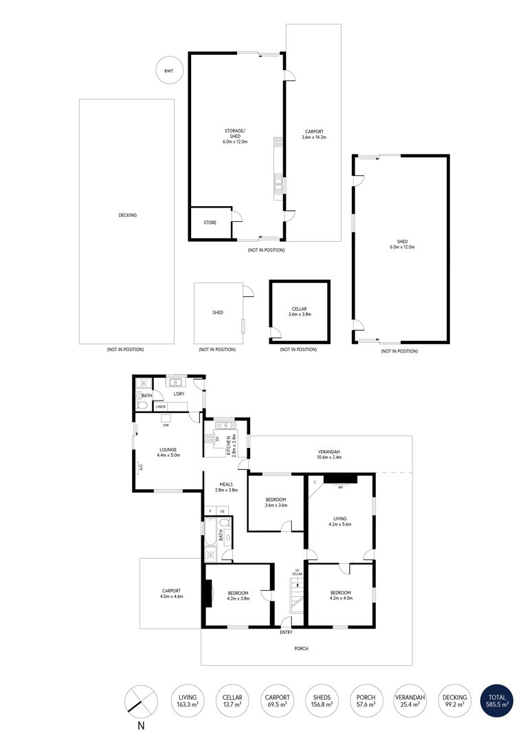
Most of the land is gently sloping and cleared of trees except for a vineyard. There is also a charming three bedroom, two bathroom home with a wraparound verandah on the property and numerous outbuildings including two large sheds.
Directly adjacent to the property is the future 'Villawood Residential Development', and nearby amenities include the Golden Grove High School, Cobbler Creek Recreation Park, Tea Tree Plaza, The Grove, O-Bahn Tea Tree interchange, and The Stables Shopping Centre.
Positioned in a picturesque area near Little Para Reservoir Lookout, equestrian centres, MTB Trails, and the Para Wirra National Park, this location offers an enviable lifestyle amongst beautiful natural surroundings. There is potential to develop the land, or live in the home and run the vineyard while land banking for the future.
With all the infrastructure projects underway across the region, interest in the area is sky-high. Opportunities of this calibre are few and far between. Call today to stake your claim!
Features You'll Adore:
• Future 'Villawood Residential Development' right next door
• 5 mins from The Stables Shopping Centre
• 9 mins from Cobbler Creek Recreation Park
• 10 mins from Golden Grove High School
• 10 mins from The Grove
• 14 mins from Tea Tree Plaza
• 15 mins from Lyell McEwin Hospital
• 21 mins from University of South Australia Mawson Lakes Campus
• 24.9km or around a 39 minute drive from Adelaide's CBD
• 132 acre potential development site
• Family home and vineyard on the property - (currently generating income from grapes, see agent)
• Large entertaining deck overlooking the grounds
• Numerous outbuildings and sheds
• Bore Water
• Mains Water
• 1000 approx. olive trees - (currently generating income, see agent)
• 3 Bedroom sold house - currently rented
• Concept plans are in place for second house, available on request.
Specifications:
Council | City of Tea Tree Gully
Council Rates | $4,991.35
Council Reserve Levy $116.60
ESL|$466.25 approx.
To express your interest, contact Rupinder Singh on 0425 429 233.
All the information provided has been obtained from sources we believe to be accurate, however, we cannot guarantee the information is accurate and we accept no liability for any errors or omissions (including but not limited to a property's land size, floor plans, and size, building age, and conditions). Interested parties should make their own inquiries and obtain their own legal advice.
RLA 309533
Read more
Read Less