45 Eddington Road Bagdad TAS 7030
5
2
4
For Sale
Offers Over $3,500,000
Property ID: 45462
Acres: 412.67
Hectares: 167.00
Price per Acre: $7,754.46 
AWN Livestock & Property - Victoria
Gate 4 Frederick Street BROOKLYN 3012
Phone: (03) 5752 5650
"Glen Avon" 166 ha of prime farmland close to Hobart.
Where working the land and luxurious living are harmoniously balanced to offer the idyllic country lifestyle property.
A beautiful drawn entrance into Glen Av ...
Where working the land and luxurious living are harmoniously balanced to offer the idyllic country lifestyle property.
A beautiful drawn entrance into Glen Avon delivers you to a highly productive and established homestead set on two titles. Substantial infrastructure, abundant water, well-managed acreage and the cherry, an architecturally designed residence expertly crafted from local sandstone and western red cedar, all of which presents an outstanding agricultural property that truly embraces a belonging to the land.
Each title borders the Bagdad Rivulet and is fully fenced, offering a mix of elevated bush areas and improved pasture, with the main lot split into 10 stockproof paddocks suitable for cattle, complete with steel stock yards and a new Arrow G catch cattle crush to handle your livestock requirements. While in the past, the property produced Seed and Cereal crops such as carrots, clover, lucerne and poppies, which demonstrates the quality of the soil and versatility this farm offers.
To quench a landholding such as this an abundant water supply is available, sourced from a TasWater outlet, rivulet, two dams and bore, which irrigates 80ha approx. 40ha of which is covered by a liner irrigator.
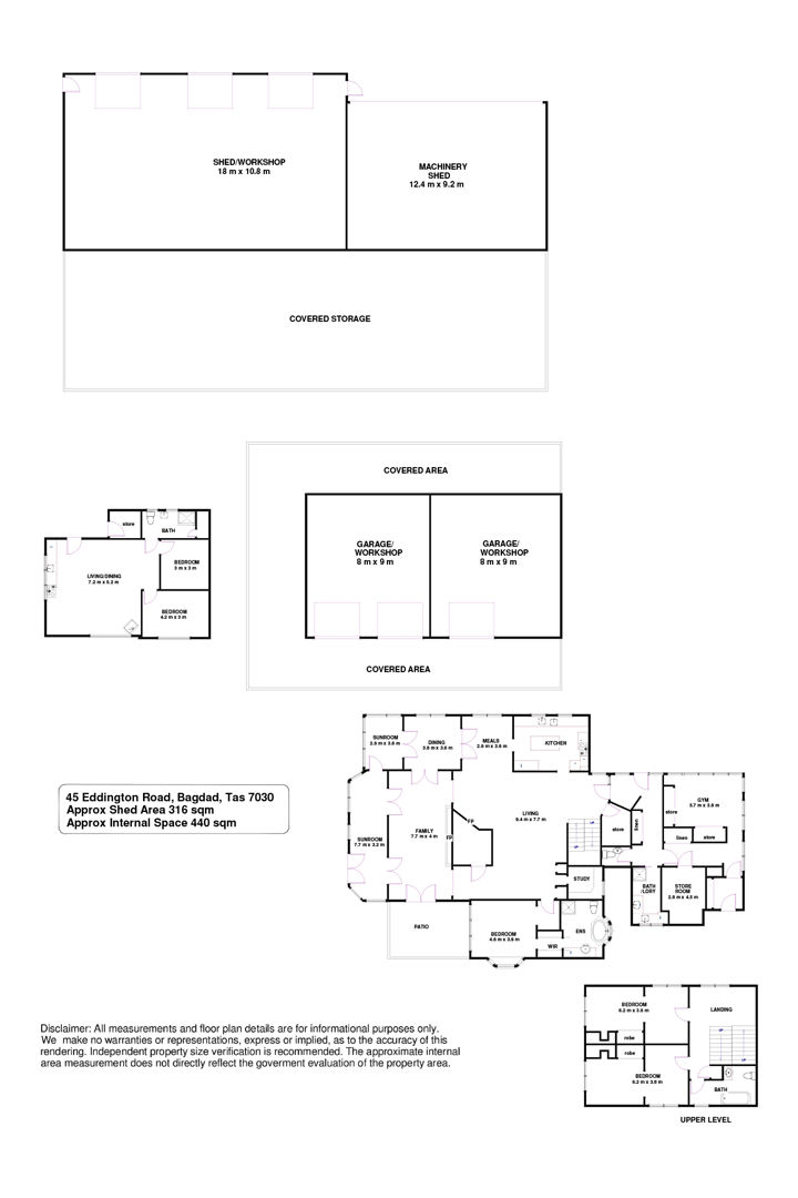
The powered 282m2 machinery shed and workshop with full length skillion and powered 144m2 dual garage with veranda and carport are significant outbuildings to handle the work and equipment required to operate a farm of this capacity.
After a hard day, you are blessed with a home of refinement that expresses natural materials and tones throughout the generously proportioned dual level floorplan, perfectly designed to suit active living and entertaining needs whilst delivering areas for moments of solitude and relaxation. A statement sandstone fireplace in the open living area demonstrates the grandeur of this home whilst being the core connection to the formal lounge, dining, sitting area, study, two sunrooms, powder room, laundry with shower, storeroom and the superb country-style kitchen highlighted by beautiful celery top cabinetry and granite benchtops that complements the natural finishes throughout this outstanding residence. Rest well with spacious sleeping quarters that offer a secluded master chamber with walk-through-robe to luxurious ensuite complete with spa and two upper bedrooms each with sitting rooms and a full bathroom to share.
The adjoining rumpus room and outdoor covered entertaining area are perfect to enjoy time separate from the daily functions of the home, whether that be for rest or play.
To add to the value proposition this property already offers, we have an additional two-bedroom auxiliary dwelling to suit accommodation or income needs and a vacant title covering 13ha approx. which provides further use options (STCA) to maximise the return of your investment even further.
With so much on offer, this quality agricultural homestead is exceptional value for the assets available. So don’t miss your chance to acquire Glen Avon.
Key points:
- TasWater 50m outlet at 0.3meg per day
- Rivulet capacity of 80meg plus winter flow
- Bore capacity of 2000 litres per hour
- 50meg and 2meg dams
- Mains water plus rainwater tank
- Linear irrigator covers 40ha
- Centre pivot irrigator covers 16ha
- Hard hose K-line covers 25ha
- Mains power plus 36 x 7.7kw solar panels
- Zoned 21.0 Agriculture & 31.0 Particular Purpose
Read more
Read Less
Property Features
- - 2 Bathrooms
- - 5 Bedrooms
- - Ensuite
- - 4 Garages
- - Built In Robes
- - Dish Washer
- - Fence
- - Fire Place
- - Lock Up Garage
- - 1 Sheds
- - 1 Sheds
- - Solar Panels
- - Study
- - Water Tank