19 Snapper Point Road Allestree VIC 3305
4
2
8
2025-02-26 00:00:00
Property ID: 44182
Acres: 4.50
Hectares: 1.82
Price per Acre: $261,111.11 Location
Address : Snapper Point Road
Suburb : ALLESTREE
State : VIC
Postal Code : 3305
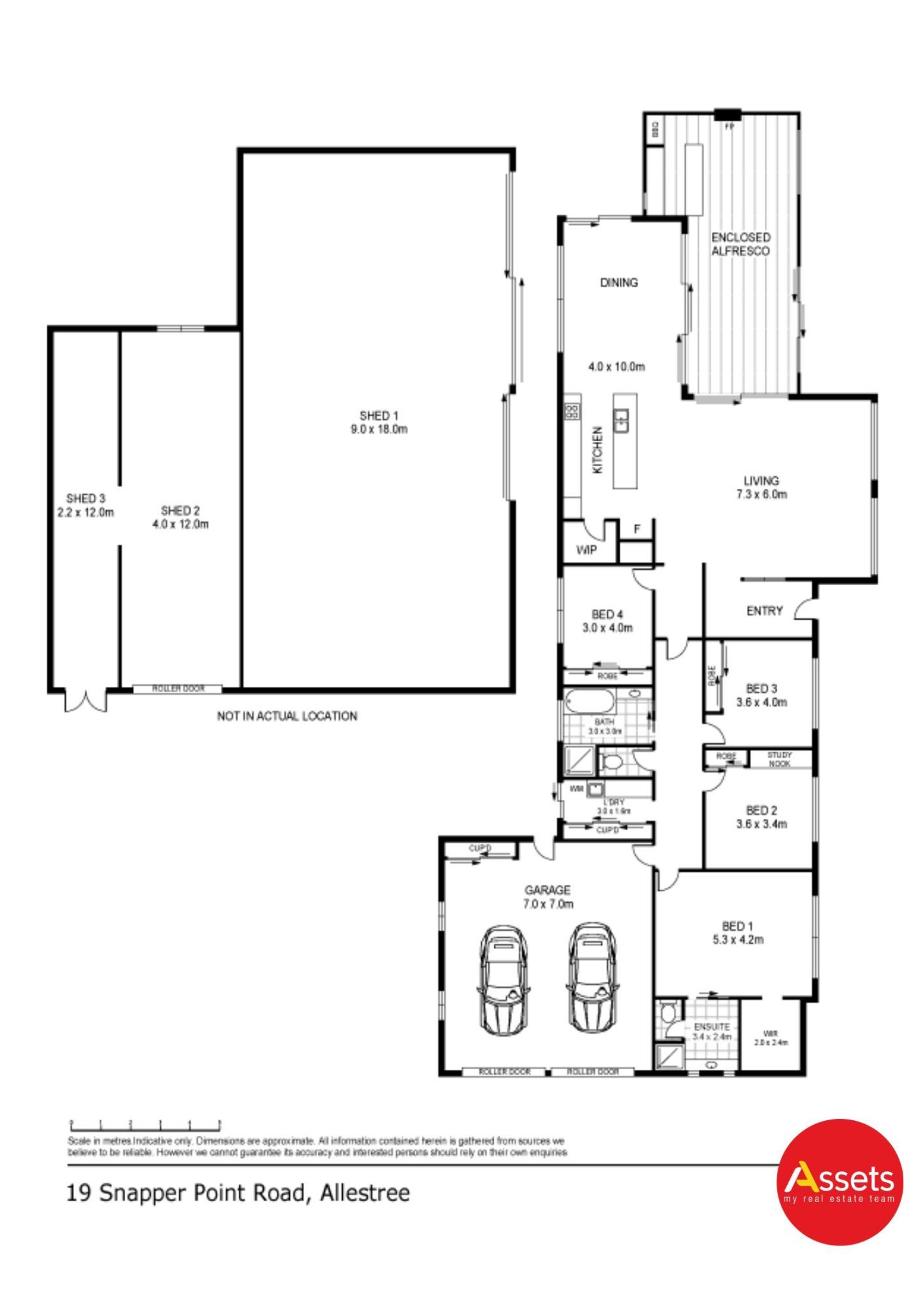
It's Stunning it's Seaside it's Lifestyle!
Discover an extraordinary lifestyle opportunity with this stunning 4.5-acre property, just a short stroll from Allestree Beach. Designed and constructed by reno ...
Read more
