24 Prawle Road Dundathu QLD 4650
4
3
12
For Sale
CONTACT AGENT
Property ID: 43479
Acres: 2.50
Hectares: 1.01
Price per Acre: $761,291.15 
Fraser Coast Real Estate
116 Boronia Drive POONA 4650
Phone: 0417980363
Deep water Riverfront Acreage close to Hervey Bay
A quality country life and big city convenience, that is what you get at 24 Prawle Road Dundathu!
If you are good at your work/life balance, this acreage prope ...
A quality country life and big city convenience, that is what you get at 24 Prawle Road Dundathu!
If you are good at your work/life balance, this acreage property allows your love of life, not be overshadowed by your need for work; it's about as complimentary as you get!
This 2.5 acre property is asset rich, well equipped and positioned!
On the riverside of the acreage sits an executive 4 bedroom homestead, inground/saltwater swimming pool, a dam nearer the Mary River, with a docking point and one of the deepest mooring accesses to this reach of the river.
This property is a prime spot for business operatives - regional managers, tradies, business owners needing to combine a love of quality lifestyle with a subtle investment in business. It won't take you long to realise you've got plenty of options!
Working from this address could get very real for a business needing to service the Fraser Coast or Wide Bay region from a very central location.
This flood free acreage is well set-up with workshop and shedding at every turn!
For starters there's a 26m x 12m (*5m height to crane rail & 3.7m door opening) industrial shed with 3 expansive sliding door panel openings, a full length gantry crane, with a work area that is high and large enough to make your productivity soar.
This space contains multi-story stack racks, work-benches and push out vented window panels, keeping the workshop comfortable & cool. The workshop is 3 phase power equipped, with high quality LED lighting (*commercial grade) and shower/toilet.
The main shed has a 6kw inverter serviced by 30 solar panels which are pivotal in powering the sheds and executive homestead.
Not far from the main shed is a 12m x 12m undercover storage zone which could be upgraded to make it lockable. This area could be used for vehicle storage and the like, or its BARN like appeal makes it just perfect as a rustic outdoor entertainment zone.
This address is easily accessible off of Prawle Road, its an ideal home base for caravan or RV travelers with a 11m x 8m (*3.4m high), 2 bay storage port; perfectly positioned behind the main shed.
Between the main shed, the storage port and the executive homestead sits another 11m x 7m, lockable 2 bay shed with workbenches and storage racks. This space is currently utilised as an art-studio, however it could be easily converted into an office or children's games room.
Water needs are serviced by 4 rainwater tanks (*up to 70,000 litres) and dam with irrigation points around the property.
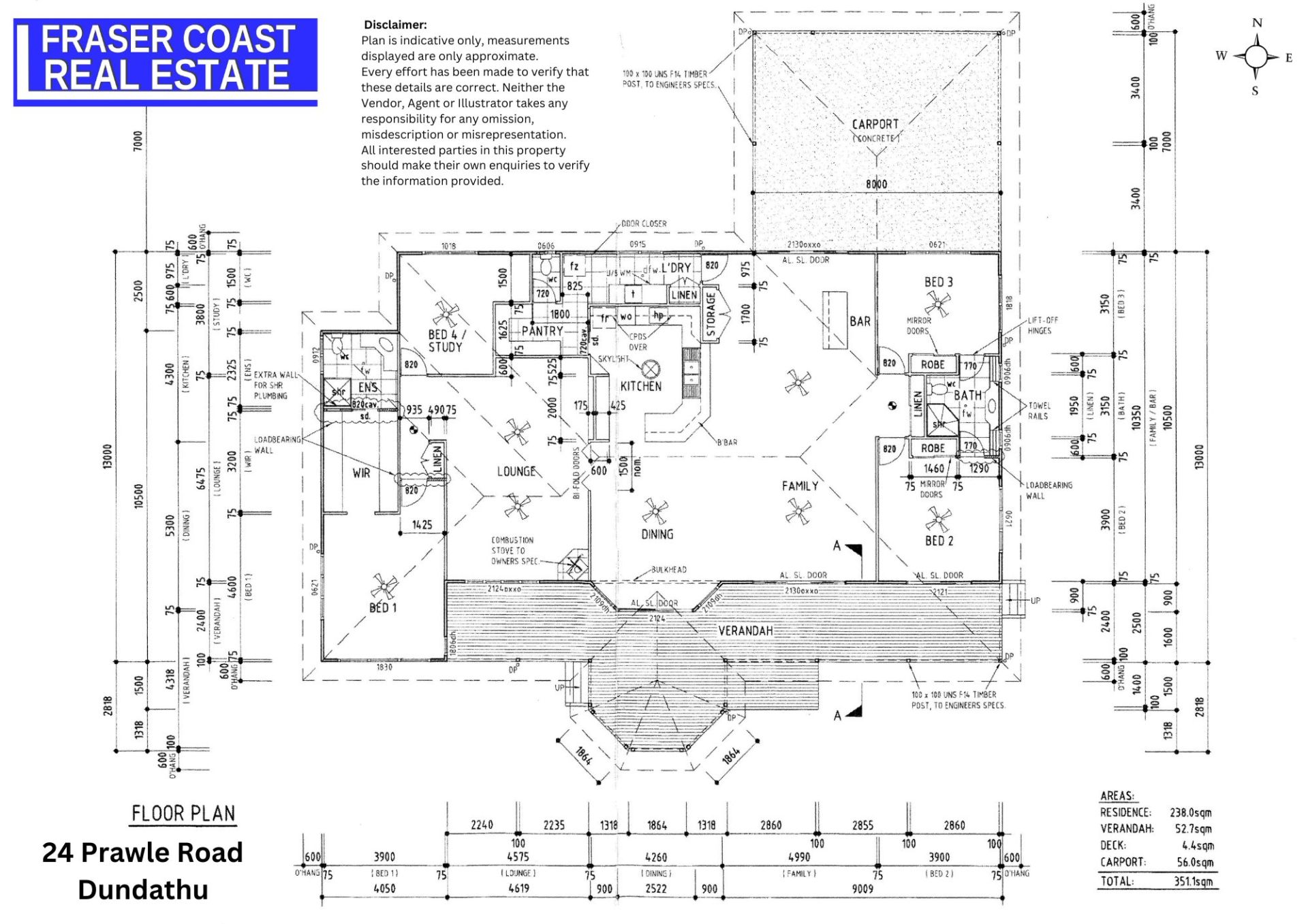
The modern 4 bedroom Executive Homestead is very classy at every turn: with a large kitchen, adjacent to a main living room, that segues into an entertainment zone/movie lounge just as spectacular in its own right!
If you choose the alternative pathway through the homestead you will find a generous internal galley style laundry, 3rd toilet and storage zone.
The master bedroom, ensuite and walk-through robe are stunning, with this area boasting spectacular river views; with bedroom 2 also having unhindered views of the Mary River, while sharing with bedroom 3 a very practical, Jack & Jill bathroom (*shower/toilet).
Bedroom 4 is situated nearer, the master bedroom which is ideal for younger, growing families or students with heavy study habits.
Dundathu is 20 minutes to Hervey Bay, 10 minutes from Maryborough and just 25 minutes to the Bruce Highway interchange.
Got lots of adult toys; like caravans, RV, boats, jet-ski, trailers, tractors, heavy machinery and don't mind mixing a little work, with A LOT OF PLEASURE?
Rest, Play or Work at this address. At 24 Prawle Road - The options are endless!!
Enquire and arrange your private inspection soon, as we've got lots to show you!
Contact the EXCLUSIVE marketing agent:
Rick Hose from Fraser Coast Real Estate on 0417 980 363 or rick[at]frasercoast.net and be prepared to be amazed!
* 2.5 acres (*zoned rural/residential)
* 26m x 12m industrial workshop/shed (*5m height to crane rail & 3.7 m door opening)
3 phase power, full length/overhead gantry crane, commercial lighting & shower/toilet
* 11m x 8m machinery port (*3.4 high) - plant & equipment/caravan/RV/ boat/horse float storage
* 12m x 12m BARN shed - vehicle/other storage or rustic outdoor entertainment area
* 11m x 7m powered workshop/shed (*potential on-site office)
* State of the art-'AI' motion sensor security system & live feed reporting
* Premium position, unhindered Mary River frontage & views
* Large private mooring (deep water access)
* Solar Power - 6kw inverter, powered by 30 panels on industrial shed
* 4 large rainwater tanks (*70,000 litre total)
* Dam with pump
* 10 minutes from Maryborough, 20 minutes to Hervey Bay & 25 minutes to Bruce Highway
Executive Homestead:
* Modern & open plan brick veneer (*238m² under roof/ 2.7m ceilings)
* Majestic views - full-length veranda (*in-ground/saltwater swimming pool, dam to river)
* Solar hot water
* 4 generous bedrooms
* Spacious master bedroom (*large ensuite & walk-through wardrobe)
* Bedroom 2 & 3 (generous size) - shares 'Jack & Jill' unified bathroom/toilet
* Split-system air - conditioning & ceiling fans
* Open plan living/dining room & fireplace (plus additional office space)
*Large, modern kitchen & walk- in pantry
*Large movie room/executive lounge room
* Galley laundry, storage zone & 3rd toilet
* Attached double 8m x 7m carport
** Every effort has been made to verify the correct details of this marketing! Neither the agent, vendor nor illustrator takes any responsibility for any omission, wrongful inclusion, misdescription or typing error. Interested parties should make their enquiries to verify the information and satisfy any concerns they may have. All fixtures shown may not be included in the sale & questions must be directed to the agent. Please do not enter the property without our Agent.**
Read more
Read Less
Property Features
- - 3 Bathrooms
- - 4 Bedrooms
- - 4 Carports
- - 8 Garages
- - Air Conditioning
- - Broadband
- - Built In Robes
- - 1 Dams
- - Dish Washer
- - Fire Place
- - Mail Service: Daily
- - Pool
- - Solar Hot Water
- - Solar Panels
- - Water Tank
- Nearest Regional Town: Maryborough
- Nearest Regional Centre: Maryborough
- Shire/Council: Fraser Coast Regional Council
- Primary School: St Helens State School
- Secondary School: Aldridge State High School