“MYALILLAâ€
SOLD by JURGEN OLLWITZ
32Ha (approx 80 acres) A unique property with all the right ingredients to create a successful venture into intensive horticulture. “M ...
SOLD by JURGEN OLLWITZ
32Ha (approx 80 acres) A unique property with all the right ingredients to create a successful venture into intensive horticulture. “Myalilla†as the name suggests is half way between Myponga and Yankalilla, the property is set well off the main road, offering privacy, seclusion, and stunning rural views. The land is deceptively productive within its own private valley, is primarily gently undulating in nature rising into some steeper grazing country towards the Northern end of the block. Approximately 50 acres would be arable and suitable for hay cutting. The property is divided into approximately 11 main paddocks and is blessed with 4 large dams which run consecutively along a central creek line. It is estimated that the collective capacity of the dams is approximately 19.4 mega litres which together with an equipped bore, gives the property a substantial 47.88 Meg water licence.
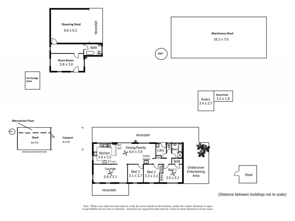
Improvements include a very comfortable brick veneer home which is located in an elevated position and comprises of 3 bedrooms, refurbished solid timber kitchen with adjoining meals and family room, formal lounge with ceiling to floor windows which are designed to take full advantage of the glorious views. The bathroom has also been refurbished which together with the separate toilet and laundry completes the homes functional floor plan.
Other improvements include a brick dairy building which has been cleverly re designed as a shearing shed with adjoining storage areas. SF stock yards with drafting race and loading ramp. Large 16m x 7m implement/workshop shed with concrete floor, 3 phase power & lighting. Impressive 30m x 18m poly igloo with irrigation system, plus a new 6m x 7.5m SF colour bond clad shed with mezzanine storage loft and adjoining 6m x 7.5m double carport area. A mainline system with 3 hydrants has enabled extensive pasture irrigation in the past, and a recently installed 5.5kw solar system has substantially reduced the farms power bills.
This property with its abundance of water and sandy loam soils represents a fantastic opportunity for the enterprising family.
Read more
Read Less