Leafy Retreat
Here is an exciting opportunity for you to secure a 10 acre parcel of land with 3 dams, a converted shed and machinery shed. A peaceful leafy retreat, tucked a ...
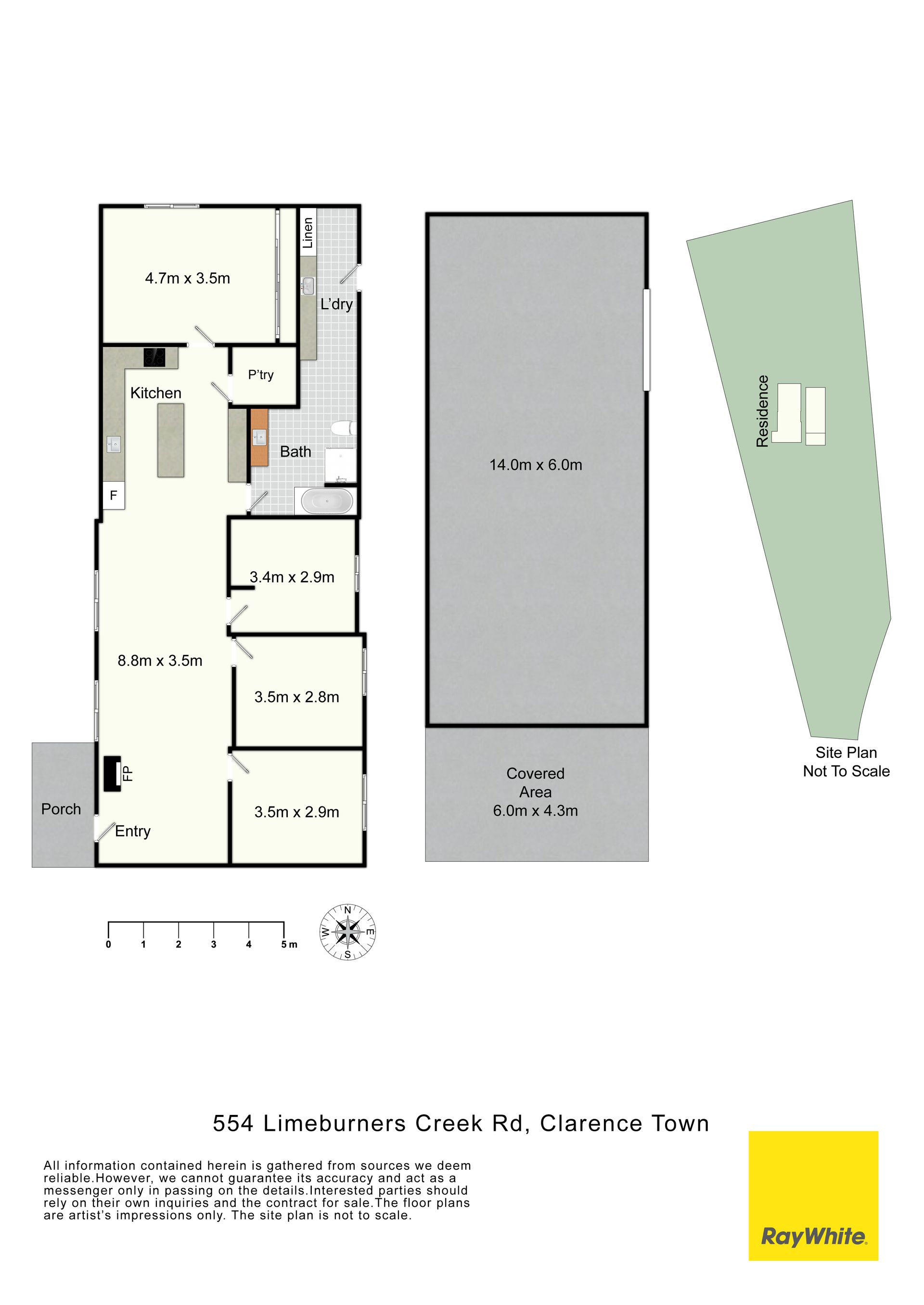
Here is an exciting opportunity for you to secure a 10 acre parcel of land with 3 dams, a converted shed and machinery shed. A peaceful leafy retreat, tucked away amidst the trees, yet a convenient location being only 8 minutes from Clarence Town, 22 minutes to Raymond Terrace, 31 minutes to the Newcastle Airport and 57 minutes to Newcastle CBD.
The converted shed offers all the comforts of modern living with open plan lounge and dining. A recently renovated kitchen, combustion fireplace, ceiling fans and split system air conditioning. With four bedrooms, a spacious bathroom and laundry come mudroom, there is plenty of space for everyone. The property is divided into multiple paddocks, with a holding yard and animal shelters. The lockable machinery shed includes 2 workshops/storage rooms with power and a carport.
Features:
• Approximately 10 acres of flat to undulating country
• 4 bedroom, 1 bathroom converted shed
• Open plan kitchen, dining & living
• Kitchen with dishwasher, electric stove & breakfast bar
• Combustion fireplace, ceiling fans & air-conditioner
• All bedrooms with ceiling fans and tiled floors
• Main bedroom with built in wardrobes
• Modern bathroom & laundry with bath, shower, vanity & toilet
• All new aluminium windows
• Security system
• 3 dams
• Holding yard
• Animal shelters
• Passionfruit, mango and citrus trees
• Large separate shed with 2 way access, 2 storage rooms & power
• Carport off shed
• 4 water tanks
• Connected to mains power
• Septic system
Set in a perfect location for all those bushwalking, motor biker, horse riding, nature loving enthusiasts being nearby to the Wallaroo State Forest. If you are looking for a place to escape and unwind, contact Jedda Casserly on 0456 063 397 for more information.
Disclaimer:
(NOT APPROVED AS A DWELLING)
We have in preparing this document used our best endeavours to ensure the information contained is true and accurate, but accept no responsibility and disclaim all liability in respect to any errors, omissions, inaccuracies or misstatements contained. Interested parties should make their own enquiries to verify the information contained in this document.
Read more
Read Less