Welcome to 13.99 hectares of versatile, picturesque landscape with ocean views.
This fully fenced 34.57-acre property with dam offers the potential to diversify into cattle grazing and other options. A number of business potentials await y ...
This fully fenced 34.57-acre property with dam offers the potential to diversify into cattle grazing and other options. A number of business potentials await you from weddings and functions, Airbnb from caretaker residence plus granny flat from building behind the main home.
Whether you envision a tranquil retreat, a multi-generational living spaces, or Airbnb ventures plus home, this property offers lots of versatility. The 4 hectares of fruit trees can be cleared for additional grazing land or for fruit harvesting and sold locally and down south.
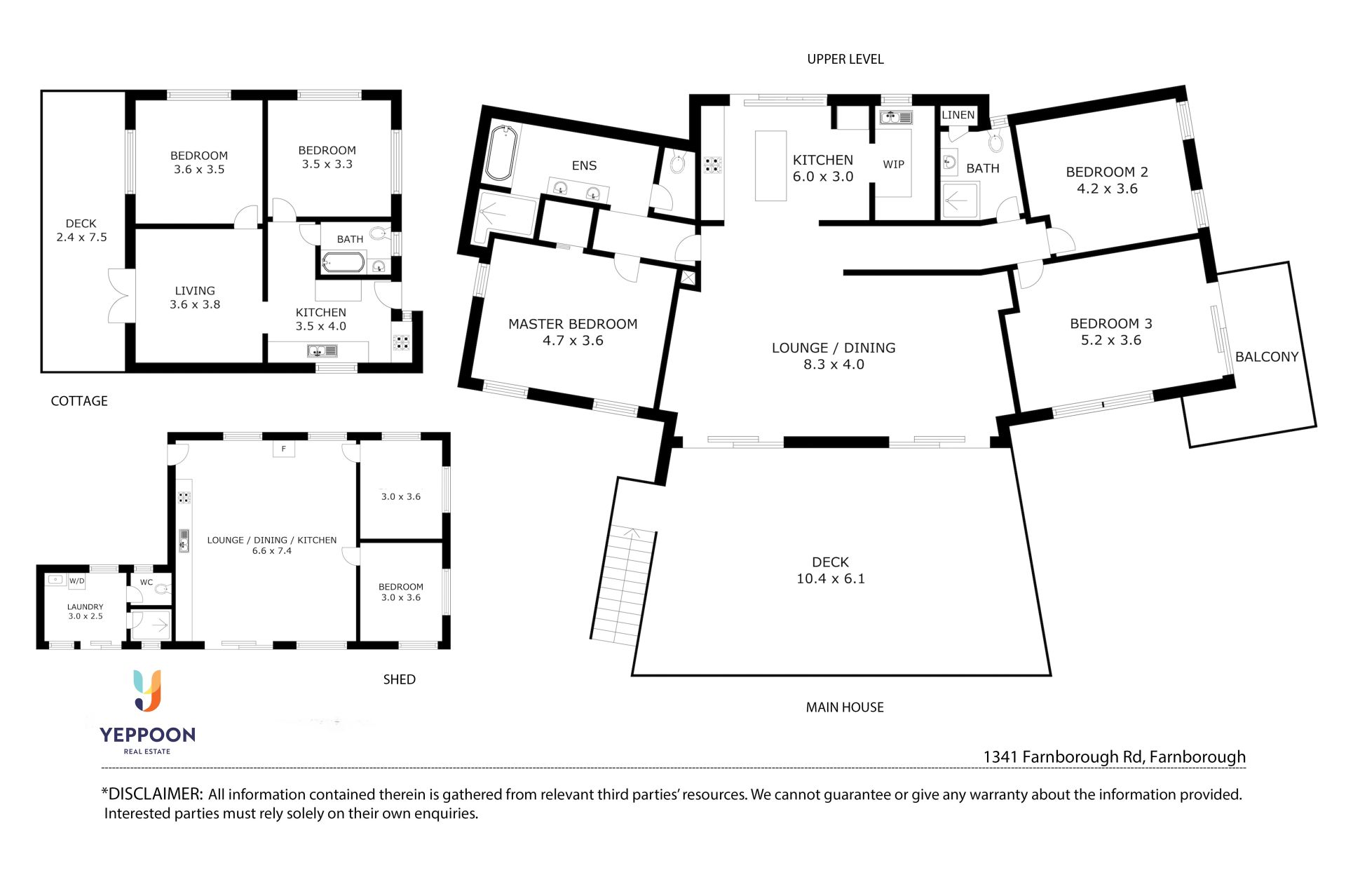
At the heart of this expansive 13.99 hectare property stands the main 3 bedroom residence, a carefully designed haven that encapsulates the essence of coastal and rural living. The home features a spacious 10m x 6m deck, inviting you to immerse yourself in the ocean views and refreshing breezes. This outdoor space is a great place to relax and entertain.
Unleash your imagination as you explore the potential of the building at the rear of the main home. With the right approvals (STCA), it could easily be transformed into a granny flat or utilized as an Airbnb accommodation.
Nestled within the embrace of this acreage is a charming caretaker's residence, boasting two bedrooms, one bathroom, lounge, kitchen and a delightful dining area that opens up to views of the lush bushland. Adjacent to the cottage is a one bedroom, one-bathroom plus office annex.
Welcome to 'Curlew Flats,' a potential business venture that adds an exciting dimension to this property. Hosting weddings or other functions, subject to council approval (STCA), this venue features a 15.6m x 19.4m undercover function adorned with full party lighting. A lockable 3.9m x 2.4m bar ensures refreshments, while the His and Hers toilet block provides convenience for guests. 'Curlew Flats' has already hosted family weddings.
Bonus 15.3 x 10m machinery shed, constructed of durable steel construction features a large bay door and even a basic shower, toilet, hand basin, and hot water system.
Explore the vast potential of this fully fenced 34.57-acre property, complete with a dam. where each feature tells a story of possibilities waiting to unfold. 'Curlew Flats' is not just a property; it's an invitation to turn dreams into reality.
Read more
Read Less