'DRUMARD PARK'
'DRUMARD PARK' is located in Tumbarumba region which holds its reputation for reliable rainfall and 4 seasons, close to Mount Kosciuszko and ski fields you are ...
'DRUMARD PARK' is located in Tumbarumba region which holds its reputation for reliable rainfall and 4 seasons, close to Mount Kosciuszko and ski fields you are also a stone throw from the Hume Highway - As you arrive at 'Drumard Park' you are greeted warmly by the magnificent oak tree lined driveway only to find a magnificent home which is set on approximately 520* acres of fertile soils, with reliable water and beautiful views over the rolling countryside.
• Set on 210*Ha (520*acres) of quality, undulating grazing land, with excellent pastures and water. Perfect for running stock.
• Reliable water in all paddocks with spring fed dams and the Shockeroo Creek that meanders its way through the property.
• 11 Paddocks.
• Steel Cattle & sheep yards.
• Large machinery shed + car garage + workshop + chemical shed.
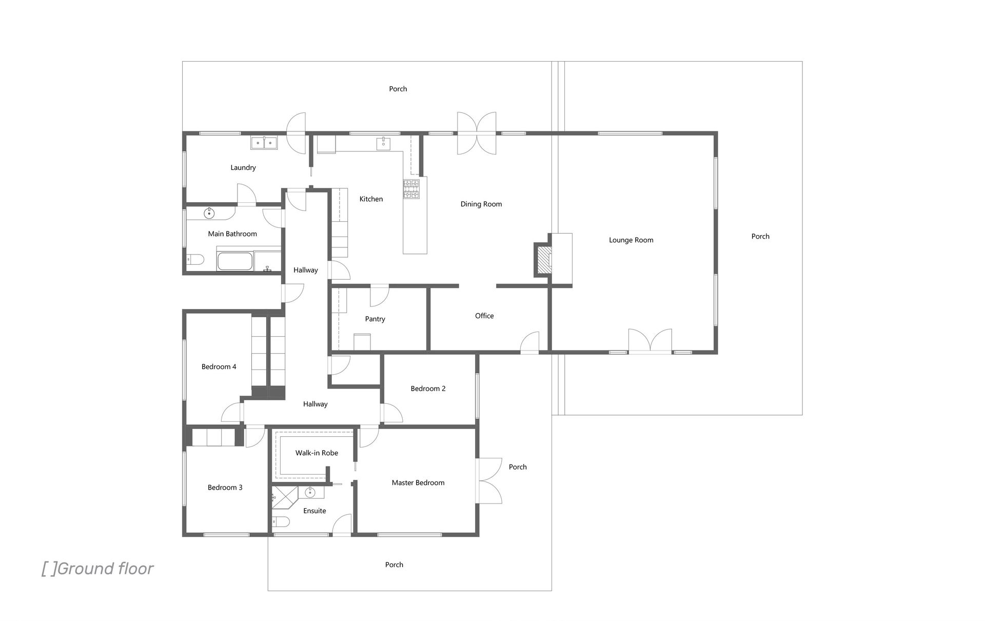
• The large open plan home has four comfortable bedrooms, 2-bathrooms, the home boasts a generous veranda that wraps the North, East & South of the home and allows you to take in the
breathtaking views or enjoy watching a tennis match amongst friends on the grass court of a Sunday afternoon.
• The main bedroom has an ensuite bathroom, a walk-in robe and French doors which open to the East.
• Two of the remaining 3 bedrooms have generous wardrobe space.
• The main bathroom has a full sized bath.
• The charming kitchen includes timber cabinetry a large bench for family and friends to gather around, walk-in pantry, 2 x electric ovens and gas stovetop.
• The living is divided by a split level which by no means separates the home it just allows you to feel the country charm with its large timber framed windows, high ceiling and double French
doors which gives you access to the incredible veranda.
• With its separate entrance, the generously proportioned laundry allows itself to also be used as a mudroom.
• 2 x 25,500 L tanks fed from the shed supply fresh rainwater and a 10,000L tank.
• A beautifully established garden surrounds the home with all the hard work having already been done. Easy care plants such as Camelia's, Conifers, Roses, Agapanthus and citrus trees have
been chosen for both their high visual impact and their compatibility to the prevailing climate, to help maintain this beautiful garden there is an underground irrigation system. There is a small vineyard, plum & apple orchard on the Northern boundary which has excellent water infrastructure.
• Sitting at 282*m ASL you will enjoy a cooler climate with high rainfall, warm summers offering an ideal chance to enjoy the warmth of the fireplace.
• The farm is divided into 11 paddocks. All the boundary and internal fencing are in reasonable stock proof condition.
• The property enjoys a generous quantity of native trees (including red & yellow box) which provide good stock shelter and a supply of firewood. 'Drumard Park' is blessed with excellent soils
and minimal weeds.
• 3 Stand shearing shed with three phase power and good undercover area for the wet months, sheep yards and steel cattle yards. Large machinery shed with power connected you will have plenty of room to store all your farm machinery and weekend toys!
From the moment you enter 'Drumard Park', you will feel at ease with the peace and privacy this property exudes. A beautifully presented home, fertile country, dotted with majestic native gum trees, secure water with beautiful views to match, ideal for entertaining friends and family.'Drumard' is a must see and will not disappoint.
Don't miss this opportunity and book a private inspection today!
** Disclaimer: All information contained herein is gathered from sources we believe reliable. We have no reason to doubt its accuracy, however we cannot guarantee it.
Read more
Read Less