Tayen Park
2 Jacob Range Road Emu Flat SA 5453
5
3
8
Property ID: 26828
Acres: 90.00
Hectares: 36.42

Professionals Edwards & Co
242 Main North Road CLARE 5453
Phone: 0888422998
Every Sunset will be stunning Here you get a home a unit AND a cottage all on 90 wonderful acres
Bring Mum & Dad heck the kids can stay at home as well and while you're at it you can even bring the parents in law!
Only 7km From Clare- Close to a ...
Bring Mum & Dad heck the kids can stay at home as well and while you're at it you can even bring the parents in law!
Only 7km From Clare- Close to all that Clare offers but far enough away as well. A Stunning location on top of the Clare/Blyth Hills it doesn't get much nicer. With views to die for over the Blyth Plains to the South Hummocks range and through to St Vincent Gulf.
Ninety Acres of ever-changing landscape. Gently undulating to some steeper country this is a versatile holding in more ways than one. You also get a 10-acre olive grove
To register your interest in the property and to enter negotiations please go to the following link:
https://buy.realtair.com/properties/109549
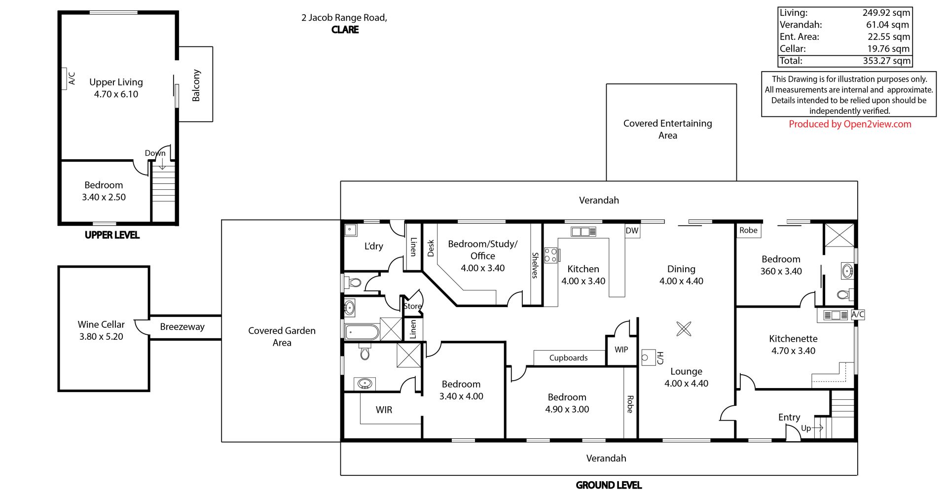
Main Home:
Ranch Style tucked into the top of the range with plenty of lawns and gardens close to the sheds etc
• Generous open plan Living /Dining/Kitchen area with feature brick walls and vaulted ceilings
• King size Main Bedroom with ensuite and WIR
• Bedroom 2 is also very large with the 3rd currently set up as a 2 person office
• Plenty of outdoor living with an ample cellar and a separate yoga /meditation room for those quiet moments
Unit:
Kids that won't leave home or family you need closer this independent but attached (to the main home) over 2 levels offers plenty for (close) independent living
• Downstairs - Kitchenette/dining room Bedroom with ensuite
• Upstairs Spacious Living room
Cottage:
Perched atop the range with breathtaking views. Sited away from the main house this is ideal for a Bed and Breakfast or the family member you want close (but not that close)
• Huge open plan Living area with Kitchen and Dining area all looking out of those views.
• Bedroom / bathroom and laundry
So the Kids can have their pony fantastic mountain bike/motorbike rides and you can run a few sheep/cattle.
• Water - 2 dams with irrigation licence waters the stock the gardens and the Olives
• Shedding we all know that there is never enough shedding but there is plenty here
• Excellent fencing external and internal
• 4.8kw Solar system
• 120,000 ltr + rainwater storage gardens are watered from the dams
Around the home the gardens are well established with lawns trees easy care native shrubs. Long verandas provide shade with an outdoor patio BBQ area being one of the outside areas. The shedding is well fantastic! Workshop, storage and high bay shed the only thing you would want is well lets face it more sheds!
If you are seeking to locate an intergenerational family or seeking income streams this is a versatile holding that is worth your consideration
Read more
Read Less
Property Features
- - 3 Bathrooms
- - 5 Bedrooms
- - 6 Carports
- - 2 Garages
- - Broadband