Dream Home In It's Final Stages
Located only 30kms from Maitland, nestled in the quiet valley of Martins Creek, this rural holding is ready for new adventurous owners.
Here we have a very uni ...
Located only 30kms from Maitland, nestled in the quiet valley of Martins Creek, this rural holding is ready for new adventurous owners.
Here we have a very unique and custom designed home, created and engineered by local business Port Stephens Design & Engineers.
With major extensions taking place, the completion of all civil foundations, steel and timber structural frameworks, external cladding including eves and colour bond roofing and gutters, and the design and installation of luxury high-end Langfords doors and windows throughout the house.
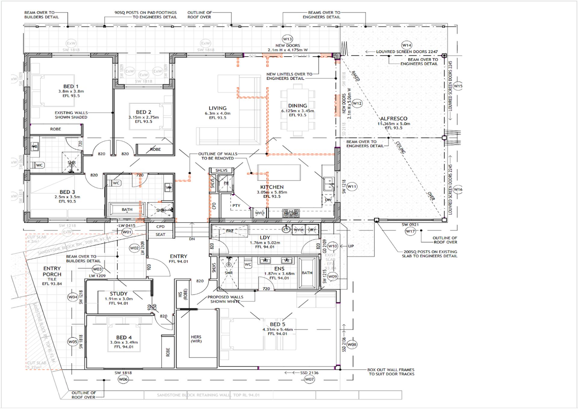
This home is well suited to those who are ready to personalise their 'once in a lifetime', and really make it their own by picking up where the owners have left off. The floorplan offers 5 bedrooms, a study and 3 bathrooms. With plenty of space to build a sleek kitchen overlooking the spacious open plan living and dining area which is surrounded by stacking doors opening to rural views and to complete the package, a servery opening to the large outdoor entertaining area.
The land is a picturesque 60 acres divided into four fully fenced paddocks. Including 4 dams, steel stock yard, 2 large open bay sheds with water and lockable workshop. The undulating hills have excavated tracks allowing for full access to the higher back paddocks.
Features:
• 60 acres
• Fully fenced
• Five dams
• 2 x Machinery sheds
• Workshop
• Extension frameworks complete
• Landford windows and doors throughout
• Bathroom fixtures and fittings onsite
• 2x 10,000L poly water tanks with petrol pump
• 1x 5,000L poly tank
• 1x 25,000L concrete water tank
• 1x 110,000L water tank (brand new) with new pump and house filtration system
• Kioti tractor, 4 wheel drive 45 hp DS (800hrs) with slasher, finishing mower, front bucket and forks. (currently not working due to lack of use, needs a service)
• Steel stock yards
- Purchased Internal and External 600x600mm tiles (ready for free delivery)
The property is just minutes from the Hilldale and Paterson train stations, with nearby Paterson offering shops, markets, fuel station, eateries, medical centre and pharmacy. Maitland CBD is only 30 minutes away, and you can be sunbaking on the beaches of Newcastle in less than an hour.
For those with children, you have the choice of Martins Creek, Vacy or Paterson Public School, and Dungog High, with convenient School bus pick-up at the end of the street. Some Maitland Schools are also an option, with bus pick-up from Paterson.
This property offers the chance to live a tranquil tree-change lifestyle just a short drive from the city and all the Hunter Valley has to offer. For more information or to arrange a viewing, please contact Jedda Casserly on 0456 063 397.
Disclaimer: We have in preparing this document used our best endeavours to ensure the information contained is true and accurate, but accept no responsibility and disclaim all liability in respect to any errors, omissions, inaccuracies or misstatements contained. Interested parties should make their own enquiries to verify the information contained in this document.
Read more
Read Less