Magnificent Home & Rural Acreage - King Creek (10.2 ha / 25 acres)
If you seek a quality home, rural acreage and the convenience of being closer to the major centres of the Mid North Coast, this property should indeed be one fo ...
If you seek a quality home, rural acreage and the convenience of being closer to the major centres of the Mid North Coast, this property should indeed be one for your consideration.
This magnificently presented property is positioned in the highly regarded area of King Creek, which is located between Port Macquarie and Wauchope.
Offering easy access to the township of Wauchope (a five minute drive) and the major regional seaside centre of Port Macquarie (20 minutes' drive), you have the best of coast and country on your doorstep.
From which you enter, you immediately appreciate that this home has been built to a high standard, not just a budget.
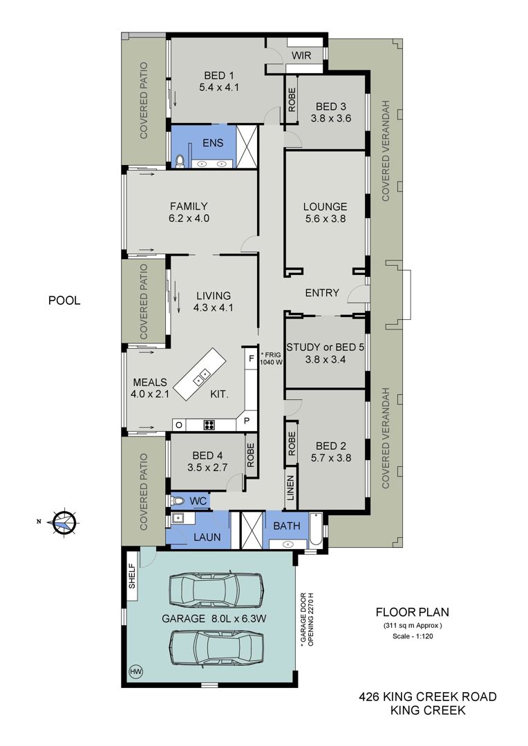
Greeted by a magnificent front entry with sandstone paving, large timber door and high nine foot ceilings, it offers multiple living zones including two lounge areas, family room and meals area.
The north facing rear of the home incorporates three verandahs overlooking the lush pastures and sparkling inground pool.
In the heart of the home is a Tasmanian Oak kitchen with stone benchtops, breakfast bar, pantry, stainless steel appliances, induction cooking, dishwasher and a large fridge space which would cater to dual fridge and freezer.
The current floor plan provides four large bedrooms, plus an office or fifth bedroom if required. The master bedroom includes a large walk-in robe and generous ensuite. The other bedrooms are serviced by the home's main bathroom and separate toilet.
A large, extra-long double garage provides space for a workshop or additional storage.
Other features include ducted air conditioning, a 6.6kw solar system and an efficient heat pump hot water system.
The land is near level and provides lush acreage that has easily carried 12 breeders and their progeny throughout all seasons, providing a lucrative result for the owner with the current cattle prices.
The property has total water security with town water connection, extra tank storage, plus a dam and water course, with the northern edge of the property bordering King Creek itself.
This is indeed a rare opportunity to acquire an acreage in King Creek itself, where you can enjoy the best of a rural lifestyle and the convenience of being within easy reach of the amenities of major towns.
Read more
Read Less